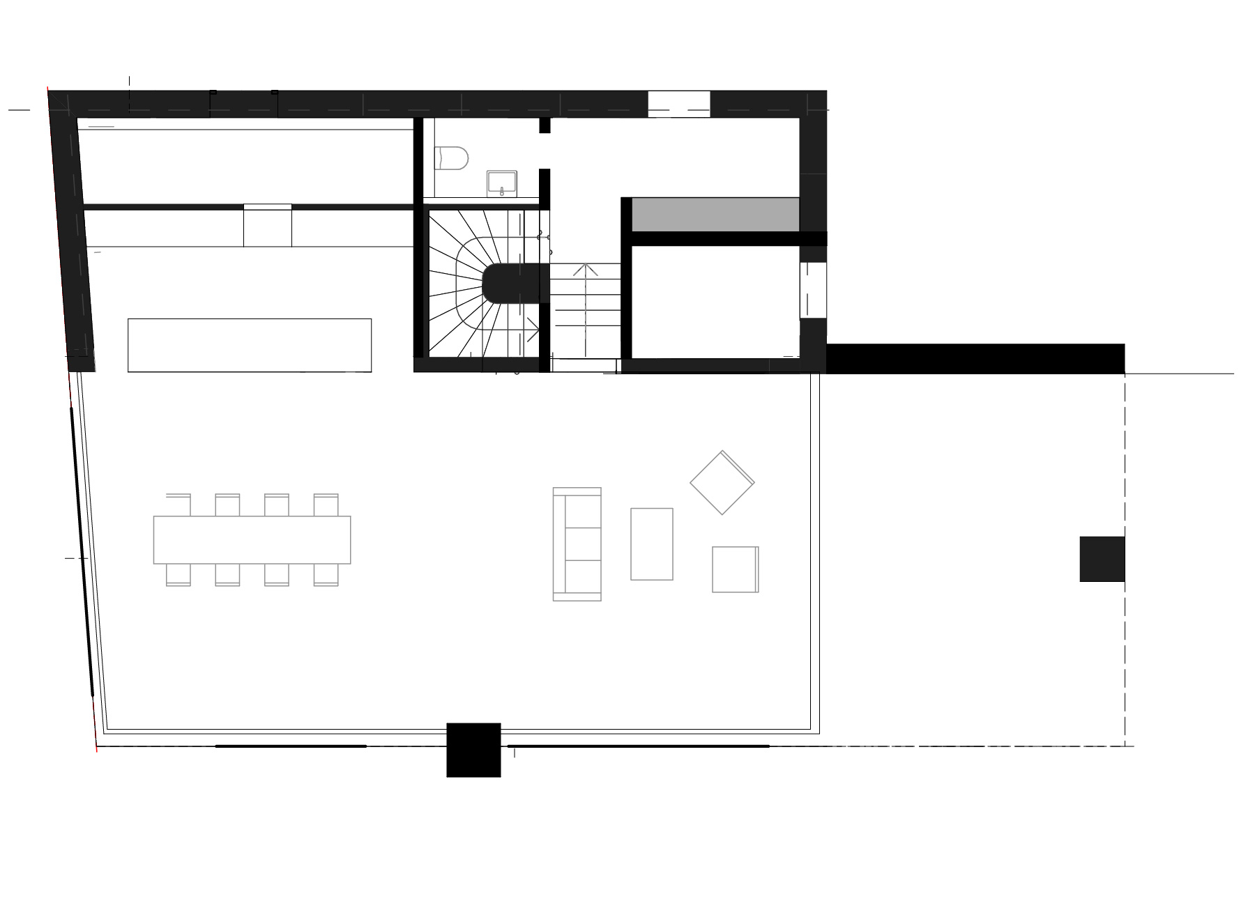
riverside hamburg

upcoming in 2020

overall concept and realization

coop. with architect: Atelier Zafari

villa in hamburg (germany)

approx. 5060 ft2

 

 

all projects